top of page
Odile+Guzy Social Dwellings
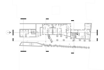
In the Autumn of 2017, we were tasked in pairs to recreate a designated existing building in Revit, which was then analysed using the Autodesk cloud functionality.

bottom of page
In the Autumn of 2017, we were tasked in pairs to recreate a designated existing building in Revit, which was then analysed using the Autodesk cloud functionality.
